Ansicht mit Eingangsbereich und Holzfassade

m.usedom

Entwurf eines Kunstmuseums mit Skulpturengarten, Gastronomie und Künstlerwohnungen

Auftraggeber: privat
Ort: Lütow, Usedom
2023

Früher Kühe Morgen Kunst

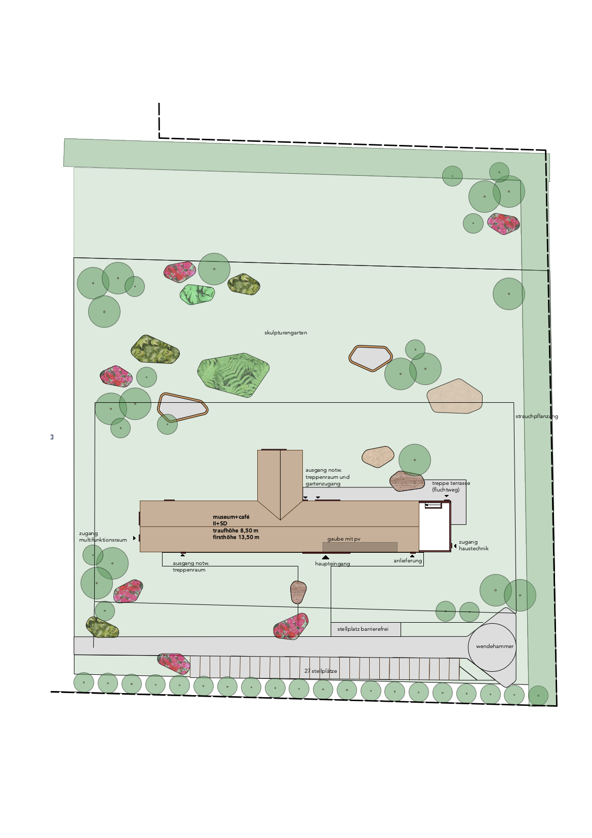
Ein Haus für Werke von Künstlern mit Bezug zur Insel Usedom. Ein Ort für zeitgenössische Arbeiten aus der Region. Ein Entwurf, der die Kubatur eines verfallenen Rinderstalls an gleicher Stelle spielerisch nachzeichnet und das Grundstück inmitten von Feldern und Wiesen neu programmiert.

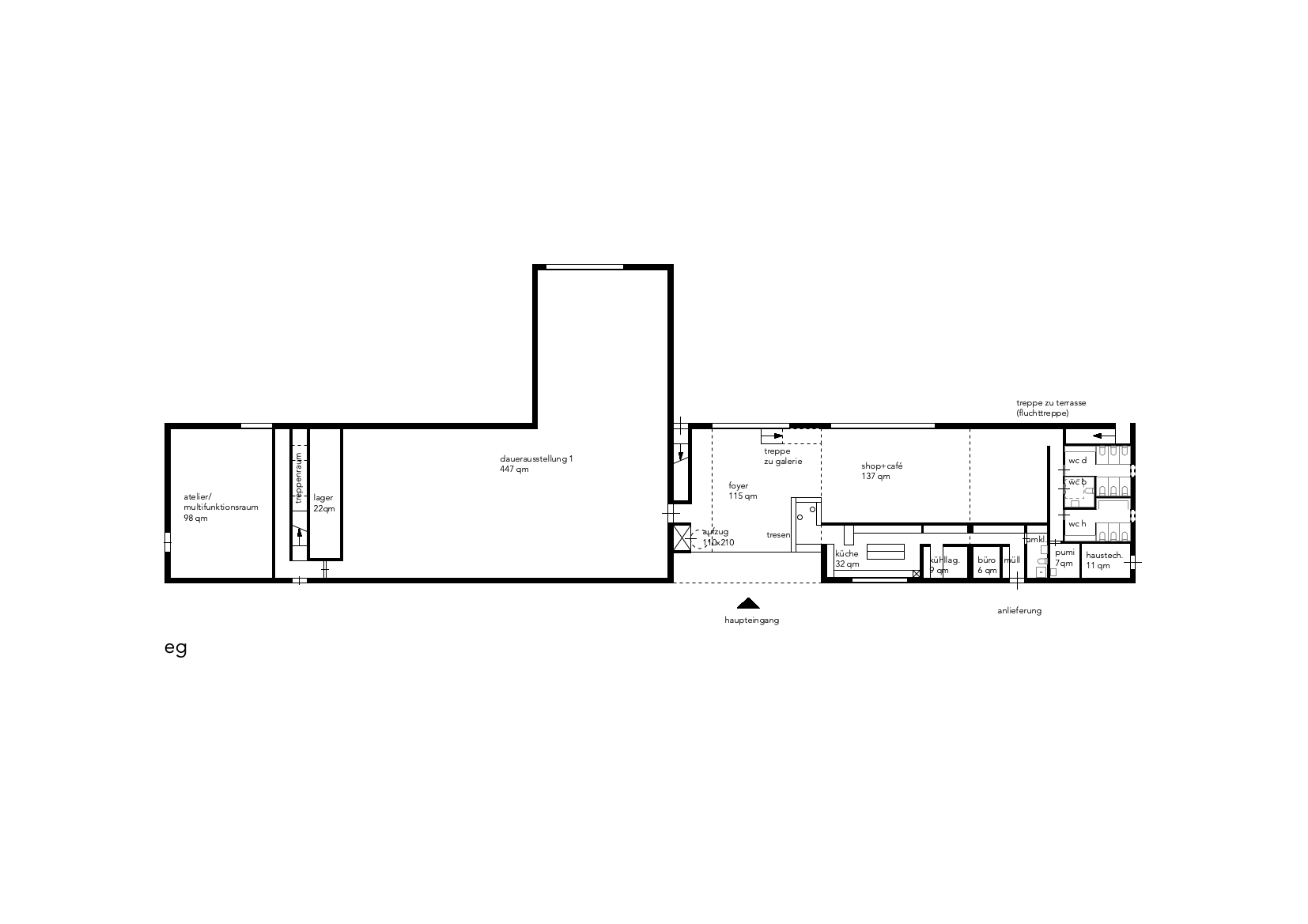
In den archaischen Lattungen an Dach und Fassade löst sich die Strenge des gestreckten Baukörpers. Gleichzeitig dienen sie als Gerüste, an denen Pflanzen das Haus zunehmend beranken können. Gauben, Unter- und Einschnitte, vortretende Laibungen von Türen und Fenstern machen die Fassaden zum Relief zukünftiger Inhalte. Ein luftiges Foyer mit Museumsshop gliedert den Bau in Ausstellungs- und Kaffebereich.

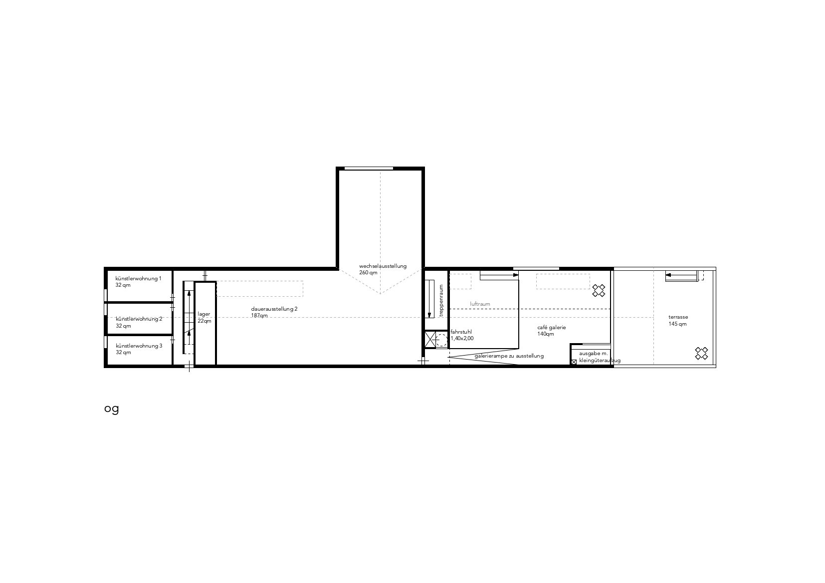
Das Galeriegeschoss über dem Bistro geht über in die großzügige Terrasse mit Blick über die Landschaft, und verfügt über direkten Zugang zu den hallenartigen Ausstellungs- und Veranstaltungsräumen. Insgesamt entstehen auf zwei Ebenen 900qm zur flexiblen Nutzung für dauerhafte und temporäre Ausstellungsformate. Drei Appartments mit Gemeinschaftsatelier dienen als Künstlerwohnungen für Austausch- und Stipendiatenprogramme.

Großformatige Fenster auf der Nordseite ermöglichen den Ausblick in einen Skulpturengarten mit Blumeninseln und schattigen Plätzchen.

mehr Informationenweniger Informationen